倉敷市連島町連島(事業地)
事業用地として。造成完成後の引渡になります。
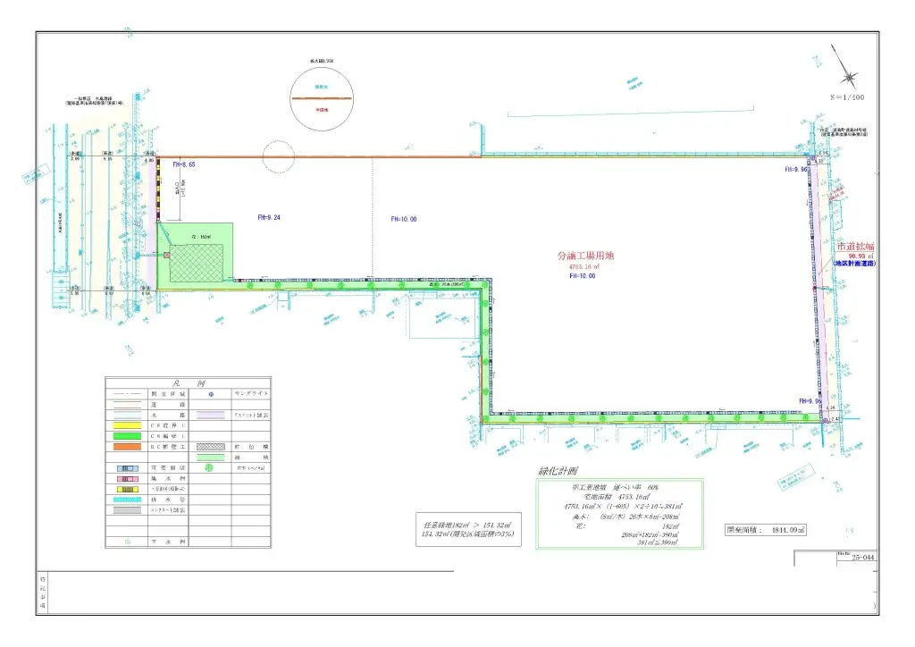
土地データ
| 代表地番 | 倉敷市連島町連島157番2 |
| 建ぺい率 | 60% |
| 容積率 | 200% |
| 現場地目 | 畑 |
| 接道 | 西側:(県道)幅員約9.5m 接面約25m 東側:(市道)幅員約3m 接面約49m |
| 都市計画 | 市街化区域 |
| 用途地域 | 準工業地域 |
| 学区 | 小学校区/ 中学校区/ |
| 各種設備 | 倉敷市上下水道 中国電力 プロパンガス |
| 備考 | 造成完成渡しです。 |
周辺地情報
分譲地情報
| 土地 | 価格 円 | 価格 454,000,000円 | 面積 4846㎡(1465.91坪) |



